PARTAGER LA CHALEUR À TOUS LES ÉTAGES

Texte en français mettant en avant la conception résidentielle, la transformation pour 2024, pour le compte de Rêno Montréal, rôle de designer d'intérieur, situé à Côte des Neiges, QC.
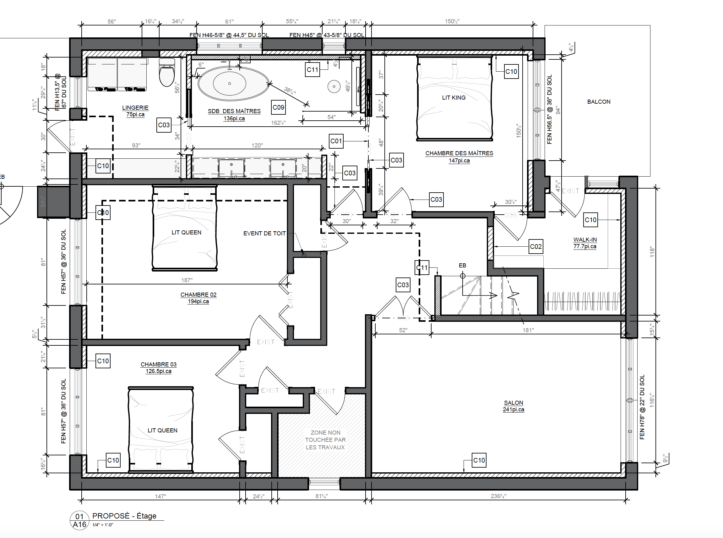
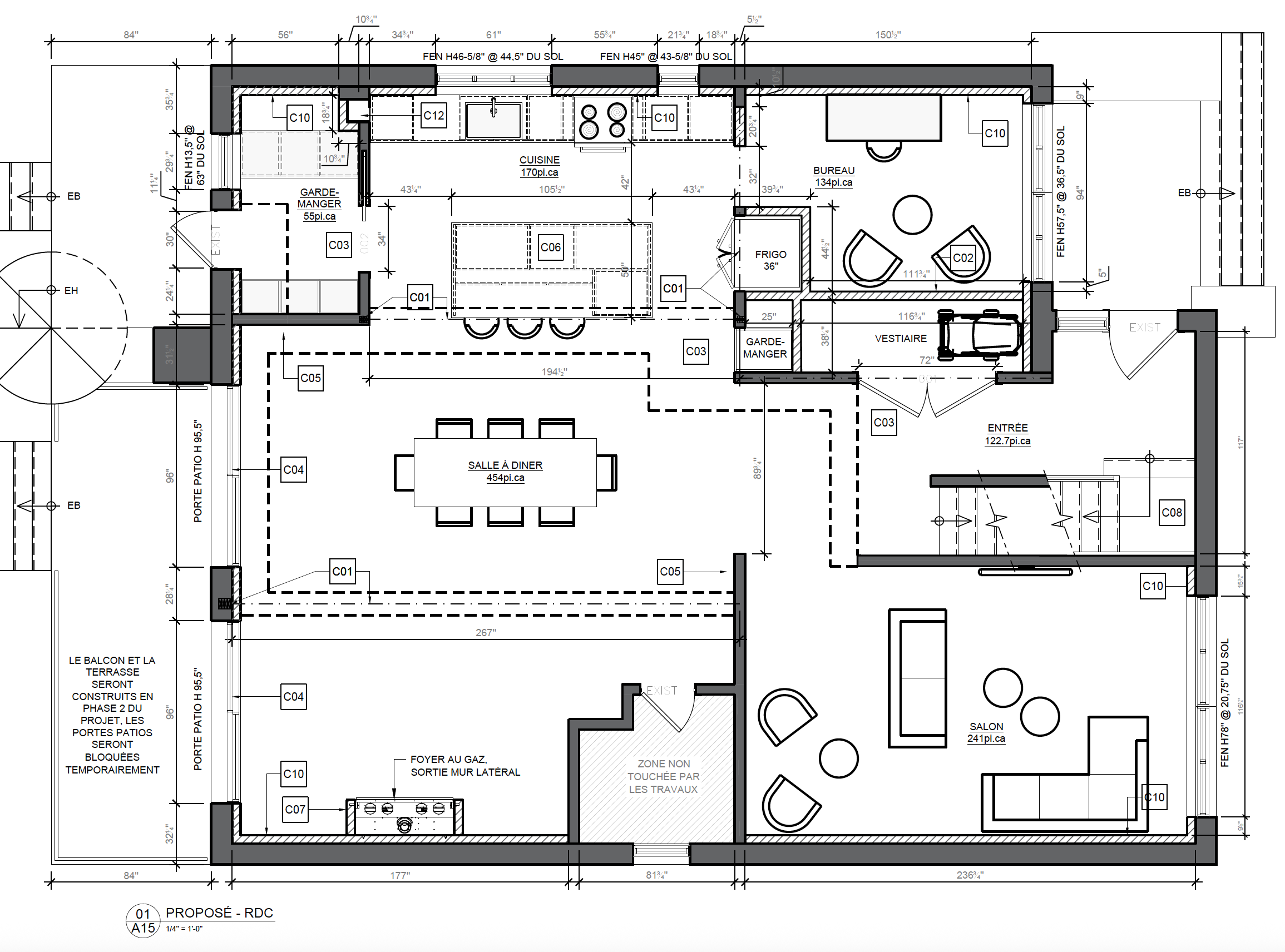
Nous avons repensé ce duplex en unifamilial. Le rez-de-chaussée, articulé autour de l’escalier en terrazzo, devient un lieu de vie multifonctions. Du bois chaleureux encadre la cuisine. L'îlot totalement libre offre un plan de travail spacieux et ordonné en tout temps. Les chambres sont passées à l’étage. L’ancienne cuisine abrite à présent une salle de bain familiale où matériaux naturels et tons pastel, baignoire auto-portante et douche, apportent douceur et efficacité. Nous conservons les chauffages à eau en créant des enveloppes en métal sur mesure. 
Escalier intérieur avec marches en marbre beige, rampe blanche et éclairage intégré dans le mur.
Intérieur moderne avec un mur noir, deux grands vases blancs et un canapé vert foncé.
Chambre minimaliste avec lit blanc, quatre coussins gris, petit noire de nuit, grande fenêtre laissant entrer la lumière naturelle, et tapis beige.
Cuisine moderne avec plans de travail en marbre, armoires en bois clair, appareils en acier inoxydable, fenêtres laissant entrer la lumière naturelle, sol en bois clair, et quelques objets décoratifs.
Intérieur d'une salle de bain blanche avec un lavabo, un miroir, un meuble en bois clair, une plante verte en pot, un éclairage mural, et une porte en verre opaque.
Une cuisine moderne avec un îlot en bois, une vasque de fleurs sur le comptoir, un mur blanc, une porte en verre au fond, et un éclairage suspendu avec trois globes.
Cuisine moderne avec îlot, grand vase de fleurs, fenêtres lumineuses, éclairage suspendu, réfrigérateur en acier, plante en pot.
Salle de bain moderne avec double lavabo, grand miroir, et vue sur une douche à l'italienne en arrière-plan, chambre visible à travers la porte ouverte.
Salle de bain moderne avec double lavabo, miroir, plante, baignoire îlot, grande fenêtre laissant entrer la lumière naturelle, porte en verre givré
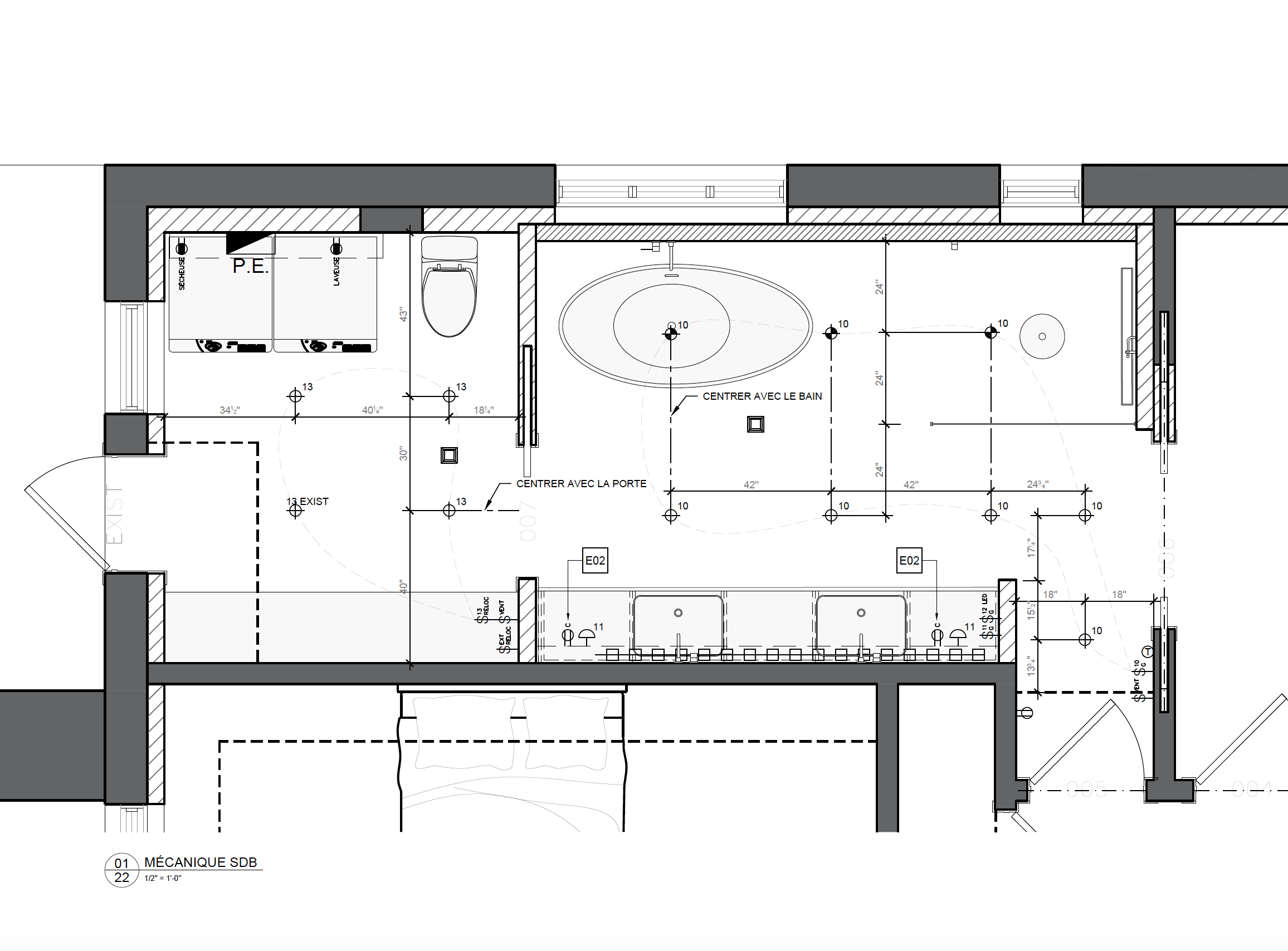
EXTRAITS DE PLANS ET VISUALISATIONS 3D